> ¿¡³ÊÁö Àý¾à ÇϿ콺 | ÀÌ-¼ÖÅ×Å©
hhKO EN JA

°³¹ß ¸ðµ¨

Àç³­¹×ÀÇ·á ¸ðµ¨

Àç³­ ¹× ÀÇ·á - ¹èÄ¡ ŸÀÔ (KICT ±â¼ú Áö¿ø)

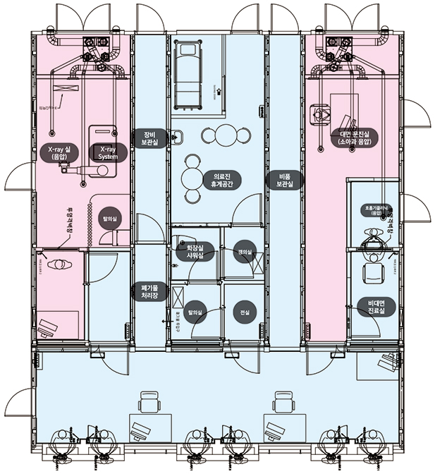
Àç³­ ±¸È£ ¹× ÀÇ·á ½Ã¼³¿¡ ÃÖÀûÈ­µÈ ´Ù¸ñÀû ¸ðµâ ½Ã½ºÅÛÀÔ´Ï´Ù. ±âº» ¸ðµâ°ú °¡º¯ ¸ðµâÀ» ÀÌ¿ëÇØ ºü¸£°Ô Á¶¸³Çϰųª ºÐÇØÇÒ ¼ö ÀÖÀ¸¸ç, Çʿ信 µû¶ó °ø°£À» ½±°Ô È®ÀåÇÒ ¼ö ÀÖ½À´Ï´Ù. ¶Ù¾î³­ À̵¿¼º°ú ¼³Ä¡ ¼Óµµ¸¦ ÀÚ¶ûÇϸç, ž籤 ÆÐ³Î ¿É¼ÇÀ» ÅëÇØ ¿¡³ÊÁö µ¶¸³ÀûÀÎ Àü·Â °ø±ÞÀÌ °¡´ÉÇÕ´Ï´Ù. ±ä±Þ »óȲ¿¡¼­ ºü¸£°Ô Ȱ¿ëÇÒ ¼ö ÀÖ´Â ½Ã½ºÅÛÀÔ´Ï´Ù.
  • ¿ëµµ : Á¤ºÎ ¹× Áö¹æ Á¤ºÎÀÇ Àç³­ ¹× ºñ»ó »óȲ, Çϰè, µ¿°è ¿Ã¸²ÇÈ, ±¹³»¿Ü Çà»ç, ºñ°íÁ¤ °Ç¹° ÀçȰ¿ëÀ» À§ÇÑ Æ¯º° ¿ëµµ µî
  • È®Àå : n º£À̽º ¸ðµ¨°ú °¡º¯ ¸ðµ¨À» ÇÔ²² »ç¿ëÇÏ¿© ¿øÇÏ´Â ¹æÇâÀ¸·Î Á¦Ç°À» È®ÀåÇÒ ¼ö ÀÖ½À´Ï´Ù.
  • ±âº» : 1°³ÀÇ ±âº» ¸ðµâ(9.0m) + 1°³ÀÇ °¡º¯ ¸ðµâ(3.0m)
  • È®Àå ¸ðµ¨ : n°³ÀÇ °¡º¯ ¸ðµâ + n°³ÀÇ ±âº» ¸ðµâÀÇ ´Ù¾çÇÑ Á¶ÇÕ
dev_sid_img01

- ´Ù¸ñÀû È®ÀåÇü ¸ðµâ·¯ °Ç¹°(¸ðµâ·¯ ¹× ¸ðµâ ¿¬°á)

dev_sid_img02


Á¦Ç° ¹®ÀÇ´Â ±Ã±ÝÇϽг»¿ëÀ» Æ÷ÇÔÇÏ¿© ¹®ÀÇÁֽøé,
ºü¸£°Ô ´äº¯µå¸®°Ú½À´Ï´Ù.